The Korean Society for Power System Engineering
[ Article ]
Journal of Power System Engineering - Vol. 30, No. 1, pp.3-9
ISSN: 2713-8429 (Print) 2713-8437 (Online)
Print publication date 28 Feb 2026
Received 15 Oct 2024 Revised 02 Feb 2026 Accepted 03 Feb 2026
DOI: https://doi.org/10.9726/kspse.2026.30.1.003

3.5 MW 어선 건조 시운전에 대한 소음특성 분석

조상곤*,
*교수, 국립군산대학교 해양·바이오특성화대학 기관공학과
Analysis of Characteristics of Noise for Construction trial in 3.5 MW Fish Ship
Sang-Gon Cho*,
*Professor, Department of Marine Engineering, College of Ocean & Biosience, Kunsan National University.

Correspondence to: Sang-Gon Cho : Professor, Department of Marine Engineering, College of Ocean & Biosience, Kunsan National University. E-mail : haerimho@kunsan.ac.kr, Tel : 063-469-1845

초록

기관 소음 및 메인엔진 실에 가까이 인접한 No.2 강의실 소음은 59.2 dB(A)로 소음 기준인 60 dB(A)에 근접하고 있으며, 소음 저감대책으로 뜬 구조층을 적용하였다. 선박 가운데와 앞부분에 배치된 격실들은 기계적인 소음보다는 에어컨 소음 영향에 의해 소음 수준이 결정되는 것으로 분석되었으며, 소음 기준에 만족되었다. 메인엔진 소음은 101.5 dB(A)로 소음 기준인 110 dB(A)를 충족하였다. 메인엔진 조정실의 소음은 66.6 dB(A)로 소음 기준인 67 dB(A)를 충족되었다. 그리고 보조기계실과 메인 엔진 조정실 소음은 109.5 dB(Cpeak) & 123.3 dB(Cpeak)로 소음 기준인 110 dB(Cpeak)를 만족 및 초과하였다.

Abstract

The noise level of No.2 Lecture room of protection wall on the main engine room and noise source is 59.2 dB(A), which is soft to the noise standard of 60 dB(A), and a floating floor was applied as a noise reduction measure. It was interpreted that the noise level of the compartments arranged in the center and the bow thruster was determined by the effect of air conditioning noise rather than mechanical noise, and satisfies the noise standard. The main engine RM noise level is 110 dB(A), which satisfies the noise standard of 101.5 dB(A). The engine control RM noise level is 67 dB(A), which satisfies the noise standard of 66.6 dB(A). Aux. & main engine room noise lever are 109.5 dB(Cpeak) & 123.3 dB(Cpeak), which exceeds the standard of 110 dB(A).

Keywords:

No.2 Lecture Room, Main Engine Room, Noise level, Auxiliary Machine Room

키워드:

제2 강의실, 주 기계실, 소음 기준, 보조 기계실

1. 서 론

선박에서 발생하는 소음은 선내 생활에 시끄러운 소리로 활동에 방해가 되거나 정상적인 업무에 지장을 일으킨다. 이것은 사람의 기분이나 상태에 따라 다르므로 확실한 정의 할 수 없다. 하지만 최근에는 스트레스의 원인으로 인식하고 있다. 사람 귀에 너무 강하게 자극하는 시끄러운 소리의 정도는 사람의 고막을 자극하는 힘에 상응하는 양으로 산정하고 있다. 이러한 선박에서 발생하는 기계적인 소음과 에어컨 실에서 발생하는 공조 소음이 선박 환경에 스트레스의 원인으로 알려져 있다. 이러한 소음의 크기로 나타내는 것은 폰 단위로 해서 표시하고 있으며, 특히 진동수의 구별을 하지 않고 순간 또는 일정 시간의 내의 평균력을 국제 규격으로 만든 지시 소음계로 규정하고 있다. 그 지침의 단위가 폰이라고 하며, 그 양을 소음 레벨이라고 한다. 소음 레벨은 소리의 크기와 거의 비슷하다고 생각할 수 있다. 소음 수준의 단위는 데시벨(dB(A))이다. 본 연구에서 선박의 소음을 저감하기 위해서 격실의 특성에 따라 결정되어야 할 요소로 저소음 선박 건조를 위해서 개념설계 단계에서 뜬 바닥구조를 적용하였다. 일반배치 계획은 거주구역에서 가능한 멀리 선정하였으며, 탑재장비 선정도 저소음형 장비를 탑재하도록 사양서에 적용하였다. 본 선박의 공기조화 시스템이 중앙에 설계 배치되어 있어서 소음저감 설계 대책이 필요하였다. 선박 소음의 규정은 국제해사기구(IMO)의 규정을 적용하여 각국의(미국1)(ABS), 영국(NR), 일본(NK) 등) 소음 기준을 정하고 있으며, 국내의 한국선급2)에서 적용한 내용을 기준으로 하고 있다.

본 연구는 실습선에서 발생하는 소리의 종류에 따라 기계에서 발생하는 기계소리3-7)에 의한 영향과 에어컨 공조시스템에서 발생하는 공조소리8,9)\에 의한 영향으로 구분하여 소음계측을 수행한 후 선박 건조 기본설계에서 모델링하여 발생하는 소음10)과 비교하였다. 선박의 설계와 건조 운항하는 단계에 발생하는 소음을 분석하므로 설계 및 건조 운항에 도움이 되도록 시운전에서 발생되는 소음과 허용 기준치와 비교·분석하였다.


2. 본 선박의 소음 측정 구역

1) 본 선박은 Table 1의 실습선으로 학생들이 거주하는 공간과 강의 공간 등을 측정 구역으로 하였다.

Specification of ship

2) 선박 내에서 측정하는 공간은 각 장소에 따라 크기 별로 다르므로 최적의 장소 및 중앙에서 계측하였다.

3) 선박 공간의 크기에 따라서 측정 장소 및 위치 개수 등을 Table 2 기준으로 한 번 더 측정하여 정확성을 높였다.

Measurements of size position of noise level the compartment room

4) 본 선박의 계측은 장소의 아래 바닥으로부터 1.2 m에서 1.6 m 사이의 높이에서 계측하였다.

5) 기관 구역은 주기관실과 보조기관실로 구분하여 소음원이 되는 기계에서 1 m 이격 거리에서 3 m 간격으로 계측하였다. 특히 실습생이 거주하는 공간 등을 위주로 하였다.

6) 본 실습선의 특징은 어로 실습선으로 개방된 갑판 위에서의 측정은 통풍장치의 입·출구와 같은 장소에서 계측하였다.

7) 강의실과 회의실 등 소음이 발생하는 공간 구역 그리고 어로작업 구간의 유압펌프 장치 등도 계측하였다.


3. 선박의 소음 측정 조건

본 실습선의 해상 시운전은 화물의 적하 또는 평형수 상태에서 진행하였다. 계측은 선박의 흘수의 5배보다 작지 않은 수심에서 하였다. 항해하는 중에는 조타 각도가 2도 미만의 좌현 또는 우현으로 일정하게 조타되도록 유지하였다. 선박 항해 속도는 주기관 부하 운전조건에 따라서 속도 및 최대 연속 정격(MCR)의 80% 이상으로 유지하였다(Table 3).

Analysis result of noise level the compartment room


4. 선박의 측정 모델구역 및 고찰

4.1 항해 및 선장실(Navigation bridge and Captain deck)

Fig. 1의 항해실 1번 구역은 브릿지의 소음 수준이 순항 속력에서 50.7 dB(A) 정도로 해석되며, 최대 속력 54.2 dB(A)로 분석, 소음 기준인 65 dB(A)를 만족하였고, 주 소음원은 공조 소음이다. 그리고 선박 운항 시에는 항해 장비 등으로 2번 구역 항해 학생 훈련실 소음은 최대 속력 55.8 dB(A)로 소음 기준인 60 dB(A)를 정도로 충족되었다.

Fig. 1

Points of measurement for nav. bri. deck the compartment room

선장실 Captain deck는 격실 소음은 선수부에 배치된 5번 구역 Captain day room에서 소음은 순항 속력에서 40.8 dB(A) 정도로 해석되었고, 최대 속력 41.7 dB(A) 분석되어서 소음 기준인 60 dB(A)를 만족하였다. 주 소음원은 공조 소음이며, 9번 구역 Professor (A) day room 소음은 최대 속력 58.3 dB(A)로, 소음 기준인 60 dB(A) 정도로 만족하지만 운항 조건에 따라 다소 소음이 있을 것으로 판단된다. 따라서 이 구역은 소음 및 진동이 발생되고 있어서 그 대책을 수립하여 설계 및 건조 운항에 반영해야 된다고 생각된다.

4.2 포켓슬 층(Forecastle deck)

Fig. 2의 12번 구역으로 격실 소음 수준은 선수부에 배치된 Saloon에서 50.4 dB(A)이며, 주 소음원은 공조 소음이다. 후부 격실 14~17번 구역 선원실에서 54.9 dB(A) 정도이며, 주 소음원은 기계음이다. 소음 기준인 60 dB(A)를 만족하였다.

Fig. 2

Points of measurement for F’cle deck the compartment room

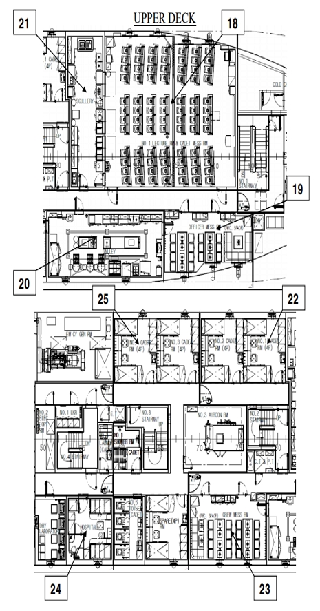
4.3 선내 상층(Upper deck)

Fig. 3의 18번 구역 선수부에 배치된 No.1 강의실은 공조소음에 의해 48.6 dB(A)로 해석되었고, 소음 기준인 60 dB(A)를 만족하였다. 후부 격실 구역 24, 25번 구역은 50.2 dB(A)로 소음 기준 60 dB(A)를 만족하며, 주 소음원은 기계음이다. 19번 구역 사무실 및 선실은 공조 소음과 기계음에 의해 소음 기준인 60 dB(A)를 만족하였다. 학생 강의실은 공조소음 및 기계소음을 만족하지만, 학습하기 최적의 공간을 설계하도록 권장한다.

Fig. 3

Points of measurement for upper deck the compartment room

4.4 2층 선실(2nd deck)

Fig. 4의 2층 선실의 선수부에 배치된 No.2 강의실은 공조소음에 의해 54.9 dB(A)로 해석되어 소음 기준인 60 dB(A)를 만족하였고, 후부 격실 30, 31번 구역은 기계음에 의해 52.7 dB(A)로 해석되어서 소음 기준인 60 dB(A)를 만족하였다. 소음 저감 대책으로 후부 격실에 Floating floor를 적용하였다. 기관실에 인접하여 소음 및 진동이 많이 발생되는 구역으로 특별하게 건조설계에 반영하여 만족되었다. 32번 후부 격실 기관 정비실 등은 기계음에 의해 80.5 dB(A)로 해석되며, 소음 기준인 85 dB(A)를 만족하였다. 이 구역에서 작업하는 직원 및 실습하는 학생은 스트레스 및 피로가 많이 유발되기 때문에 오랜 시간 동안 작업은 제한되어야 한다고 생각된다. 그래서 건조설계 단계에서 에어컨 시스템을 설치하여 조금은 줄이는 방안을 마련하였다.

Fig. 4

Points of measurement for 2nd deck the compartment room

4.5 탱크 탑(Tanktop deck)

Fig. 5의 33번 구역은 기관학생 훈련실로 소음 수준은 기계음과 공조소음에 의해 63.4 dB(A)로 해석되며, 소음 기준인 67 dB(A)를 만족하였다. 35, 36번 구역은 보조 및 주 기관실로 소음 수준은 109.5 dB(Cpeak) & 123.3 dB(Cpeak)로 소음 기준인 110 dB(A)를 초과한다. 이 구역은 선박에서 가장 소음 및 진동이 발생하고, 열에 의한 온도가 높아서 직원 및 학생 당직자는 오랜 시간에 노출되면 청력에 문제가 발생될 우려가 있다. 당직 시간 및 작업시간을 조정하도록 조치하고 청력보호구 등의 보호조치를 취해야 한다. 특히 33, 34번 구역은 기본설계 단계에서 소음 기준을 규정보다 더 반영하여 기관 당직하는 학생 및 직원에 소음에 의한 피로를 저감하는 방안을 마련하였다.

Fig. 5

Points of measurement for tank top the compartment room


5. 결 론

3.5 MW 어선 실습선의 바닥 충격음 저감을 위해서 뜬 구조의 형식을 시공하여, 운항 중 소음저감 해석을 수행하였으며, 선박의 건조시기에 적절한 소음 대책으로 선주 및 건조자에 고소음 발생 구역의 대책에 도움이 되고자 하며, 분석한 결과는 다음과 같다.

발생하는 기계음에 의한 영향과 공조소음에 의한 영향으로 해석하였으며, 최종적으로 해석 결과는 격실과 업무실의 소음 수준은 소음 허용 기준을 만족하였다.

1) 항해실의 소음은 순항 속력에서 50.7 dB(A) 정도로 해석되었으며, 최대 속력 54.2 dB(A)로 분석되었다. 소음 기준인 65 dB(A)를 만족하였다. 항해실은 공조 소음이며, 선박 운항 시에는 항해 장비 등으로 항해 연습실은 소음 수준은 최대 속력 55.8 dB(A)로 소음 기준인 60 dB(A) 정도로 충족되었다. 특히 항해의 중요성을 고려하여 소음저감 대책으로 이중 뜬 구조를 적용하였다.

2) 선수부에 배치된 No.2 강의실은 공조 소음에 의해 54.9 dB(A)로 해석되었고, 소음 기준인 60 dB(A)를 만족하였다. 후부 격실 학생실 등은 기계음에 의해 52.7 dB(A)로 해석되어, 소음 기준인 60 dB(A)를 만족하였다. 소음 저감 대책으로 후부 격실에 Floating floor를 적용하였다.

3) 기관 훈련실 소음 기준은 기계음과 공조소음에 의해 63.4 dB(A)로 해석되었으며, 소음 기준인 67 dB(A)를 만족하였다. 보조 및 주기관실의 소음은 109.5 dB(Cpeak) & 123.3 dB(Cpeak)로 소음 기준인 110 dB(A)를 초과하였다. 기관조정실 및 학생 훈련실은 기본 설계단계에서 소음 기준을 강화하여 건조설계 반영하여 건조하였다.

기관실과 같은 소음이 많이 발생하는 특정 장소 소음은 기본설계와 건조설계 단계에서 면밀히 조사하여 소음에 대한 스트레스 및 피로 등에 보호 장치를 마련해야 된다고 생각된다.

Author contributions

S. G. Cho; Project administration, Supervision, Writing-review & editing, Investigation, Formal analysis.

References

  • American Bureau of Shipping(ABS), 2019, ABS guidance notes onboard noise analysis. (http://ww2.eagle.org, )
  • Korea register(KR), 2017, Noise and vibration. (http://www.krs.co.kr, )
  • S. H. Park, K. H. Lee and H. S. Han, 2014, “Estimation of Uncertainty in Vibration Measurement of Shipboard Equipment”, Translate Korean Society Noise & Vibration, 24(7), 509-516. [https://doi.org/10.5050/KSNVE.2014.24.7.509]
  • B. K. Jung and J. H. Lee, 2018, “A Study on Specific Noise Characteristics of a T/S NARA”, JFMSE, 30(5), 1696-1702. [https://doi.org/10.13000/JFMSE.2018.10.30.5.1696]
  • M. S. Kim, H. O. Shin, M. S. Kim and B. K. Hwang, 2010, “Boarding Environment of Training Ship KAYA to the Noise during the Voyage”, JFMSE, 22(2), 218-230.
  • H. S. Han, S. H. Jeon, C. W. Lee, D. N. Lee, Y. H. Kim and S. K. Lee, 2021, “Study for Monitoring of the Sound Pressure Level and Cavitation Inception Speed of the Propeller Using the Acceleration Signal on the Hull”, Translate Korean Society Noise & Vibration, 31(4), 398-407. [https://doi.org/10.5050/KSNVE.2021.31.4.398]
  • S. H. Park, 2019, “Estimation of Measurement Uncertainty in Airborne Noise and Structureborne Noise”, Translate Korean Society Noise & Vibration, 29(3), 396-402. [https://doi.org/10.5050/KSNVE.2019.29.3.396]
  • S. J. Part, J. D. Kim, Y. H. Park, B. J. Kim and H. K. Choi, 2018, “Development of Hybrid Silencer to Reduce HVAC Noise”, Trans. Korean Soc. Mech. Eng. C, 6(1), 65-73. [https://doi.org/10.3795/KSME-C.2018.6.1.065]
  • S. J. Part, H. S. Lee and Y. S. Yang, 2022, “A Study on the Resonator of HVAC Silencers”, Trans. Korean Soc. Mech. Eng. A, 46(12), 1127-1134. [https://doi.org/10.3795/KSME-A.2022.46.12.1127]
  • S. G. Cho, 2023, “An Analysis of Modeling of Noise Pollution for Ship Construction of Fish Training Ship”, Journal of Power System Engineering, 27(5), 5-14. [https://doi.org/10.9726/kspse.2023.27.5.005]

Fig. 1

Fig. 1
Points of measurement for nav. bri. deck the compartment room

Fig. 2

Fig. 2
Points of measurement for F’cle deck the compartment room

Fig. 3

Fig. 3
Points of measurement for upper deck the compartment room

Fig. 4

Fig. 4
Points of measurement for 2nd deck the compartment room

Fig. 5

Fig. 5
Points of measurement for tank top the compartment room

Table 1

Specification of ship

Length (O. A.) 96.45 m
Length (B. P.) 85.00 m
Breadth (Moulded) 15.00 m
Depth (Moulded) 7.60 m
Draft (Design) 5.20 m
Draft (Scantling) 5.50 m
Type Hyundai 7H32/40P
Power 3,500 kW×750(218) RPM at MCR
Cylinder bore×Piston stroke 2,975 kW×750(218) RPM at NCR
No. of cylinder 320×400 mm
Mean effective pressure 7
Mean piston speed 21.38 Bar

Table 2

Measurements of size position of noise level the compartment room

Size of space Measurements of max’
20 m2 1~2
20~40 m2 2~3
40~80 m2 3~4
80~120 m2 4~5
120~200 m2 5~6
200 m2 6~7

Table 3

Analysis result of noise level the compartment room

Points of measurement Contract Spec dB(A) Measurement 85% dB(A) Measurement 100% dB(A)
1. Wheel house 65 50.7 54.2
2. Navigation training 60 54.5 55.8
3. Simulation room 60 52.2 52.8
4. 1st engineer day 60 43.4 41.9
5. Chief engineer day 60 44.1 41.0
6. Captain day room 60 40.8 41.7
7. Chief officer room 60 41.0 42.6
8. Conference room 60 43.0 43.3
9. Professor(A) day 60 56.6 58.3
10. Professor (B) day 60 52.0 51.3
11. No.2 Science room 60 49.0 49.1
12. Saloon 60 49.1 50.4
13. Ship office 60 46.4 47.1
14. No.2 Crew room 60 49.8 50.0
15. No.1 Crew room 60 43.8 49.7
16. No.7 Crew room 60 54.9 52.0
17. No.8 Crew room 60 49.0 50.1
18. No.1 Lecture 60 48.4 48.6
19. Officer mess room 60 44.9 44.8
20. Galley 70 47.0 49.1
21. Scullery 70 46.2 46.8
22. No.1 Cadet room 60 45.7 47.3
23. Crew mess room 60 42.4 44.3
24. Hospital 60 48.3 49.4
25. No.4 Cadet room 60 47.8 50.2
26. Cadet recreation 60 46.5 49.5
27. No.2 Lecture room 60 51.7 54.9
28. No.9 Cadet room 60 48.1 49.1
29. No.10 Cadet room 60 51.0 51.3
30. No.18 Cadet room 60 50.7 52.7
31. No.17 Cadet room 60 50.8 51.2
32. Eng. workshop 85 79.7 80.5
33. Engine training 67 60.9 63.4
34. Engine control room 67 63.4 60.6
35. Auxiliary machinery room (Ceq) (Cpeak) 110 93.2
96.6
109.0
92.2
95.8
109.3
36. Engine room (Ceq) (Cpeak) 110 104.9
107.4
120.9
106.8
109.3
123.3